Planification de projet
Villa « Saphir » / 6353 Weggis

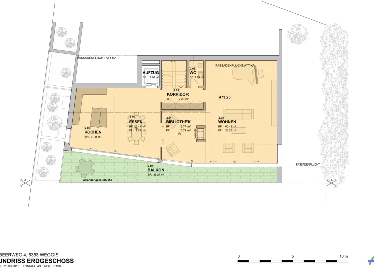
Type de bien Villa « Saphir », nouvelle construction
Adresse 6353 Weggis
Mètres cubes 1697 m³
Surface habitable 362 m²




Vous avez planifié un projet et souhaitez bénéficier de notre soutien ?
N’hésitez pas à nous contacter. Nous nous ferons un plaisir de vous répondre.