Project planning
Villa «Saphir» / 6353 Weggis

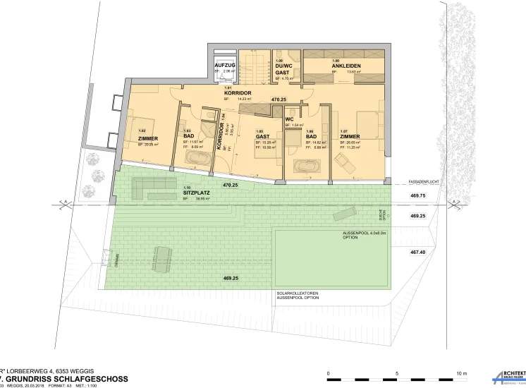
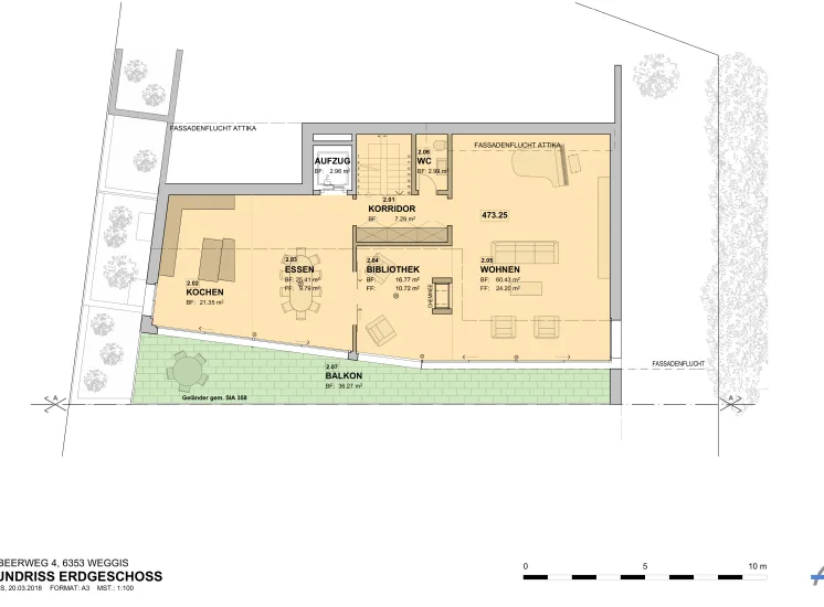
Object type Villa new building project «Saphir»
Location 6353 Weggis
Parcel 1044 m² two-storey residential zone B, plot ratio 0.2
Cubic volume 1697 m³
Living area 362 m²




You already have a project planned and need our support?
Get in touch with us. We look forward to your call.